• Accueil
  • > Location Local Commercial - Yerres (91330)

Location Local Commercial - Yerres (91330)

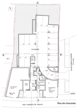
Référence : 101 m2 RUE CHARLES DE GAULLE
Loyer HT/HC : 1 851,00 €
Description du bien

Yerres (91330).
Local commercial situé en rez-de-chaussée d’un programme
immobilier neuf, en centre-ville de Yerres, sur un axe urbain structurant à vocation commerçante.

Implantée en façade sur rue, la cellule d'une surface d’environ 100 m² bénéficie d’une bonne visibilité et d’un accès direct pour la clientèle.
Elle est adaptée à un projet de restauration ou un commerce de proximité souhaitant s’implanter au coeur d’un secteur vivant et
fréquenté.

L’environnement immédiat se compose d’un tissu résidentiel dense,
complété par des commerces et services de proximité, assurant un flux
régulier tout au long de la journée.

Une implantation cohérente pour des projets souhaitant bénéficier d’un
emplacement central au sein de Yerres.

------------------------------------------------------------------------------------------------
SURFACES
> Surface totale : 101 m2
> Type de surface : local commercial en rez-de-chaussée
> Livraison : Brut de béton – fluides en attente Vitrines posées.

CONDITIONS
> Loyer : 220 €/m2/an – soit 22 220 € HT/HC/an
> Paiement trimestriel à échoir
> Indexation annuelle (indice ILC)
> Bail commercial 3/6/9
> TVA applicable (20 %)
> Charges : Taxe foncière et TEOM À Déterminer
> Dépôt de garantie : 3 mois de loyer
> Caution bancaire (GAPD) : 3 mois de loyer
> Frais d’acte : 740 € TTC à la charge du preneur
> Provisions de charges estimatives : 18 €/ m2

LIVRAISON
> T2 2026
> Travaux d’aménagement à prévoir par le preneur

HONORAIRES
> 30% HT du loyer annuel de référence HT - HC à la charge du preneur

Publiée le : 03/03/2026
Conditions de reprise:
  • Bail : commercial 3/6/9
  • Loyer : 1 851,00 €
  • Charges : 150 € / mois (estimation)
Caractéristiques des locaux :
  • Surface : 101 m2 m²
  • Avec vitrine : Oui
  • Location Local Commercial - Yerres (91330)-photo-1
  • Location Local Commercial - Yerres (91330)-photo-2