• Accueil
  • > Vente Entrepôt / Local d'activités - Ruffieux (73310)

Vente Entrepôt / Local d'activités - Ruffieux (73310)

Référence : 340938209032
Prix : 890 000 €
Surface : 879m2
Description du bien

Dpt savoie (73), à vendre à ruffieux locaux d'activités actuellement loués, entre annecy et aix-les-bains, proche du lac du bourget.
RARE A LA VENTE! Pour un investissement en CHAUTAGNE, proche du lac du Bourget, entre Annecy (env. 40 km) et Aix-les-Bains (env. 20 km).

Locaux d'activités en bon état général, rénovés et agrandis en 2007.

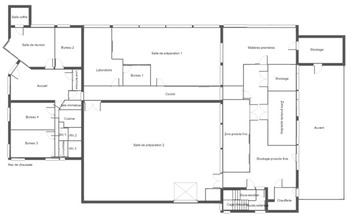
Actuellement loués 4318,43 € HT/HC mensuel (activité de R&D, laboratoire, fabrication cosmétique), d'une surface d'environ 879 m², ils sont composés entre autres :

- d'un hall d'entrée, de bureaux, d'une salle de réunion,
- de locaux de production, d'ateliers,
- de salles de laboratoires, d'une salle blanche avec sas d'entrée,
- de locaux de stockage,
- d'une salle d'expédition,
- d'un monte charge,
- de vestiaires,
- ...

Egalement un auvent de stockage d'env. 90 m², une cave de 45 m².

Le tout sur une surface cadastrée d'env. 2226 m² avec ses places de parking et son espace vert joliment arboré.

Taxe foncière à la charge du locataire.

N'hésitez pas à m'appeler pour discuter de votre projet..

Les honoraires sont à la charge du vendeur.
Les informations sur les risques auxquels ce bien est exposé sont disponibles sur le site Géorisques : www. georisques. gouv. fr.

Réseau Immobilier CAPIFRANCE - Votre agent commercial (RSAC N°814 739 173 - Greffe de CHAMBERY) Audrey METRAL Entrepreneur Individuel - Réf.883903

Publiée le : 02/08/2025
Caractéristiques des locaux :
  • Surface : 879 m²
Indices :
  • 417
  • 69
  • Vente Entrepôt / Local d'activités - Ruffieux (73310)-photo-1
  • Vente Entrepôt / Local d'activités - Ruffieux (73310)-photo-2
  • Vente Entrepôt / Local d'activités - Ruffieux (73310)-photo-3
  • Vente Entrepôt / Local d'activités - Ruffieux (73310)-photo-4