• Accueil
  • > Vente Terrain ZI / ZA - Finistère (29)

Vente Terrain ZI / ZA - Finistère (29)

Référence : VEN-01/2024/004-VT
Prix : 1 694 000 €
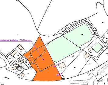
Surface : 7000m2
Description du bien

Vente terrain de 7000m² constructible zone ue.
Terrain de 7000m² constructible en zone UE (évolution en cours en zone UC). FAI : 1.694.000€ / 242€ le m².Prix justifié car ce bien est situé sur un axe passant très fréquenté et en entrée d'une grande métropole du Finistère à proximité de salles de spectacles, séminaires et expo....Bonne visibilité de la route à 4 voies et accès par le rond point principal.« La zone UE couvre des secteurs destinés à accueillir préférentiellement des activités de production industrielle, artisanale, de stockage et de logistique, en raison d'une part de la spécificité de leurs besoins en termes de foncier et d'infrastructure s de transport,. La zone peut néanmoins accueillir des services et des équipements nts liés au fonctionnement de la zone qu'il s'agisse de restaurants, crèches, aires de détente, etc.....ou de bureaux, commerces et services assimilés s'ils sont liés aux activités admises ou qu'ils contribuent à assurer la continuité d'une filière d'activité admise dans la zone. »

Publiée le : 21/01/2026
Caractéristiques des locaux :
  • Surface : 7000 m²
  • Vente Terrain ZI / ZA - Finistère (29)-photo-1
  • Vente Terrain ZI / ZA - Finistère (29)-photo-2