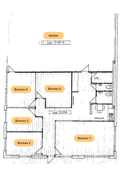
PORNICHET ATLANTIQUE (44) CENTURY 21 vous propose à la LOCATION, au sein d'un ensemble immobilier, un local d'activité d'environ 250 m² situé sur la commune de Pornichet. Ce bien se compose : - D'un espace bureaux d'environ 160 m², comprenant 5 bureaux, sanitaires et coin cuisine - D'un atelier d'environ 90 m², équipé d'une porte sectionnelle électrique facilitant les accès et livraisons Le local bénéficie également d'un accès et d'une surface extérieure dédiée à l'arrière du bâtiment. ?? Un outil de travail immédiatement opérationnel, idéal pour une entreprise souhaitant combiner bureaux et activité technique sur un même site. Loyer mensuel : 2 600 EUR HT Taxe foncière à la charge du locataire Honoraires d'agence en sus Réf : 8372 Les informations sur les risques auxquels ce bien est exposé sont disponibles sur le site Géorisques : www.georisques.gouv.fr