• Accueil
  • > La Roche-sur-Yon (85000)

La Roche-sur-Yon (85000)

Référence : 908/85
Description du bien

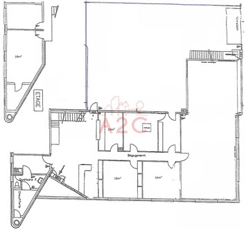
Za acti sud - local d'activité 179m.
Situé zone Sud avec une belle visibilité

Bâtiment mixte en très bon état, composé de bureaux (180m² environ) avec mezzanine (30m² environ) et d'un atelier (150m² environ).
Il dispose de places de stationnement et est édifié sur une parcelle indépendante.
Taxes foncières à la charge du locataire (environ 2200€).

Publiée le : 07/10/2025
Conditions de reprise:
  • Loyer : 2 500,00 €
Caractéristiques des locaux :
  • Surface : 330 m²
Site Internet du partenaire:
  • La Roche-sur-Yon (85000)-photo-1
  • La Roche-sur-Yon (85000)-photo-2
  • La Roche-sur-Yon (85000)-photo-3
  • La Roche-sur-Yon (85000)-photo-4