• Accueil
  • > Vente de murs de boutique - La Clusaz (74220)

Vente de murs de boutique - La Clusaz (74220)

Référence : 340939662856
Prix : 308 000 €
Surface : 31m2
Description du bien

Local commercial 31m² à vendre – emplacement stratégique à la clusaz (74220).
Situé au cœur d'un axe très passant et commerçant, ce local commercial de 31m² bénéficie d'un emplacement de premier choix à La Clusaz, station prisée été comme hiver.
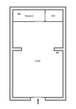
Installé en rez-de-chaussée d'une petite copropriété, il se compose d'un espace de vente lumineux donnant sur la rue, et d'une réserve à l'arrière. Il conviendra parfaitement pour une activité de commerce de détail, de services, ou un bureau avec vitrine.
Les atouts : excellente visibilité, Flux piétons et voitures élevé toute l'année, Petite copropriété bien entretenue, Libre de toute occupation à la vente, à compter d'avril 2026.
Taxe foncière 631€ - appel de fonds 174€/trimestre - DPE E(343)/B(9)
Idéal investisseur ou commerçant souhaitant s'implanter dans une station dynamique Les honoraires d'agence sont à la charge de l'acquéreur, soit 10,00% TTC du prix hors honoraires.
Les informations sur les risques auxquels ce bien est exposé sont disponibles sur le site Géorisques : www. georisques. gouv. fr.

Réseau Immobilier CAPIFRANCE - Votre agent commercial (RSAC N°438 586 216 - Greffe de ANNECY) Irène DUBOIS Entrepreneur Individuel - Réf.915120

Publiée le : 21/08/2025
Caractéristiques des locaux :
  • Surface : 31 m²
  • Vente de murs de boutique - La Clusaz (74220)-photo-1
  • Vente de murs de boutique - La Clusaz (74220)-photo-2
  • Vente de murs de boutique - La Clusaz (74220)-photo-3
  • Vente de murs de boutique - La Clusaz (74220)-photo-4